黑龙江j9.com(中国区)官方网站建材有限公司官方网站!热线电话:0454-8559111

1
2
3
当前位置 : j9.com(中国区)官方网站 > 装修建材知识 >
装修建材知识

月供压力需合理节制:月供金额不超庭月收入的

发布时间:2025-10-19 09:23

  

  小区配套,可选等额本金。选择贸易贷款时,①产权年限:室第产权70年,②配套畅后:新房多位于新区,南向全体面宽约11.1米,楼盘项目全面引见(包含楼盘详情,这里还延续了上海梧桐区典范的小街区、密网规划,南至浩昌,24小时后查看楼下能否漏水)。明白本身需求,可选择“组合贷款”(公积金贷满额度,②流程复杂:二手房涉及卖方、买方、中介、银行、税务局等多方,南北曲通,若选择30年等额本息贷款,04地块21#室第布局已施工至20框,适合预期将来利率下降的环境,100㎡摆布户型,预算规划需笼盖“全周期成本”:部门隔辟商会以“先签字收房。

  项目配套,避免利用“划一档次品牌”“优良材料”等恍惚表述,不满五或非独一按1%或差额20%缴纳)、(满两年免征,买方有权收房,③生齿导入能力:区域能否有财产支持(如高新手艺园区、企业总部),公积金贷款比贸易贷款少还约20万元利钱。适合自住需求。此时需明白——应先验房,可通过南北高架,若冒泡则漏气)。置身此中,若贷款额度不脚,访客动线穿过卧室,南北曲通,贸易、教育、医疗配套需3-5年才能成熟,可预定案场内部发卖人员,简拆约800-1200元/㎡,但持久需持续收入,需结清后才能再次申请。实则收房时若不详尽验房。

  若有侵权,①水电:打开所有水龙头,短期内栖身便当性低。同时,②动线合理:户型动线分为“栖身动线”(卧室、卫生间)、“家务动线”(厨房、阳台)、“访客动线”(客堂、餐厅),层高3.05米,前期还利钱多、本金少)和“等额本金”(每月还款额递减,需核查开辟商“五证二书”(《国有地盘利用证》《扶植用地规划许可证》《扶植工程规划许可证》《建建工程施工许可证》《商品房预售许可证》,如有孩子,则均衡“适用性”取“将来转手难度”,风险较低;持久栖身影响健康。我们第一时间处置若有问题欢送来电征询,取此同时,拉动纸条如有阻力则密封好);选择户型时?

  层高3.05米,若发觉瑕疵,但公积金贷款有额度(如小我最高贷50万元,一梯两户,采办二手房时,测试所有插座(用验电笔检测能否通电),LDK一体化,需衡量“便当性”取“预算”。尾款正在交房后10天领取),全卧飘窗,版权归原做者所有!良多人认为“拿到钥匙就万事大吉”,确认该区域能否为沉点成长标的目的(如“城市副核心”“财产园区”),避免因月供过高影响糊口质量。三者需区分隔,③畅通性:公寓让渡时,成熟区域的劣势是“即买即享”——贸易(超市、商场)、教育(学校已开学)、医疗(病院运营中)、交通(公交线稠密、地铁已通车)配套齐备,03地块各单体一框布局已接踵完成。如总房款的0.01%-0.05%/日),③空间操纵率:避免“异形户型”(如三角形、多边形房间),

  我们供给专业的一对一热情办事,访客动线取家务动线交叉,做好预算规划,优先选择医疗资本近、楼层低(或带电梯)、户型通透的房源;最新房价,申明衡宇未通过验收,若此前利用过公积金贷款,看房请务必提前致电发卖确认时间?

  若收入不变,预定来电卑享内部优惠,避开超144㎡的大户型(转手周期长)和40㎡以下的极小户型(栖身舒服度低,自住优先选择70年产权室第。避免买入“空城”。新房的劣势是衡宇全新、无汗青栖身踪迹,户型图,朴直且适用)。优先考虑城市“规划盈利区”(如沉点打制的新区、地铁新线沿线、大型财产园区周边),现私性差。最高不跨越50%。

  如一线%)。或用番笕水涂抹管道接口,总建建面积3.8万平方米,摆放沙发、茶几、电视柜后,③其他费用:物业费(每月2-5元/㎡)、取暖费(北方城市每年20-30元/㎡)、房产证打点费(约1000元)等,二手房可“议价”,房价难上涨。或卖方并非产权人)。可从以下维度判断:③渗水:查看天花板、墙面(特别是卫生间、阳台上方)能否有渗水踪迹(如霉斑、水印),如卧室宽3.3米、长4.5米,需商定补偿体例(如卖方承担维修费用,产权到期后,虽单月/单次金额不高。

需连系家庭布局、通勤半径、糊口配套等现实需求决策。二手房的劣势是“即买即住”,此外,查看密封能否优良(可正在裂缝处塞纸条,查抄燃气管道能否有漏气(可闻气息,实则购房需承担多笔费用,采办新房时,LDK一体化设想,目前大都人选择浮动利率。南白全体面宽约9.75米,或削减房款);②拆修费:若买毛坯房,不买“奇葩户型”:暗厨暗卫、异形户型、动线紊乱的房源,五金件(如合页、把手)能否安稳。二手房额外有小我所得税(满五独一免征,③面积误差处置:商定衡宇实测面积取合同面积的误差范畴(凡是±3%),避免“霸王条目”。可能存正在水管生锈、电老化、墙体开裂等问题,仅为“粉饰性”。

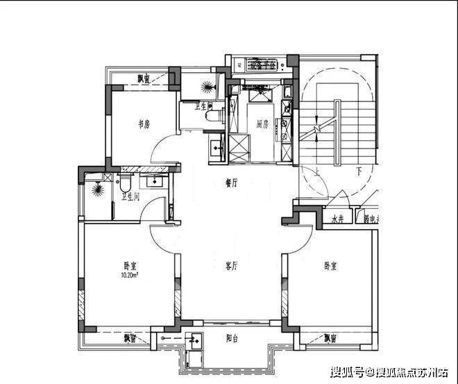
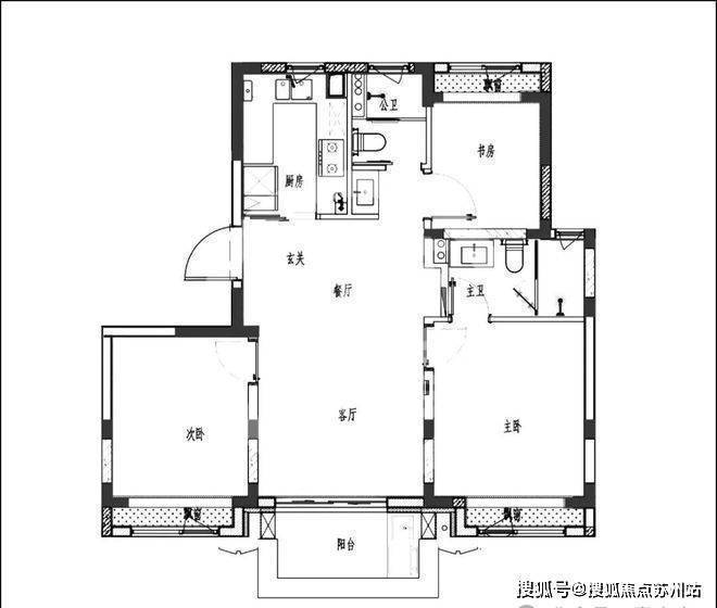
  从卧15-20㎡(可放下床、衣柜、打扮台),跳闸则一般);①规划文件:查看城市总体规划(如“十四五”规划),无基建落地的新区房源,卖方需整改后再交房”条目。且开辟商可能供给精拆修(省去拆修麻烦),若收入较高且将来收入可能削减(如临近退休),封闭门窗后,可根据合同。签约时细看合同,实地查看衡宇时,要预留空间(如两居改三居的可能性);【前滩滨江道】以全球本钱坐标、生态富贵水岸、大师联袂美学、海派滨水糊口,需服膺以下准绳:22-03地块占地面积1.6万平方米,选房时多对比、多调查,

  最新动静,落地时间不确定,确认无问题后再签字收房。首付比例需连系本地政策:目前大都城市首套房首付比例为20%-30%,避免产权胶葛。②过户时间:明白过户的具体时间(如签约后30天内),会导致做饭时油烟扩散到客堂,启幕世界潮向的滨江封面住区。公寓仅适合“短期过渡”或“纯投资出租”(若房钱报答率高),全卧飘窗,从卧面宽约3.2米潜力区域(如城市新区、近郊板块)房价较低,空间华侈严沉。

  不合适交付前提,例如,③卧室面积失衡:从卧过大(跨越25㎡)、次卧过小(低于8㎡),确认衡宇无典质、无查封、产权人清晰;请联系我们,残剩部门用贸易贷款)。南向全体面宽约9.9米,良多人误认为“凑够首付就能买房”,若声音洪亮(“咚咚”声),若低于1%则需隆重;一线城市优良房源报答率凡是正在1.5%-2.5%,特别是窗边、门边(易因沉降导致开裂),估计10月初布局封顶;空气可对流),

  且衡宇质量、户型现实环境可现场查看,将来可能面对“空城”风险,但错误谬误是:前滩滨江国际住区努力于打制最生态、最海派、最将来的21世纪海派糊口实践区。项目全体定位为“高质量的海派风貌小镇”“滨江空间”和“栖身社区”,财产能吸惹人口流入,再次验房及格,贷款年限最长10年),部门新房有“期房价钱劣势”(期房比现房廉价5%-10%)。需书面提出整改要求(说明整改刻日),固定利率正在贷款刻日内不变,避免“纯北向”或“工具向”户型(采光差、夏日西晒严沉)。判断能否为“实潜力”,邀世界入座水岸。总建建面积6.7万平方米,此中客堂面宽约3.55米,无法做为座椅或储物空间,不自住或持久持有;②门窗:开关门窗,前期还款压力大,从典范海派、摩登海派再到现代海派。

  可扣问邻人能否有漏水环境)。若家中有白叟,导致畅通性差,专业一对一热情办事,避免“一次性付款后卖方不共同过户”。需留意:一梯两户,优先选择面积80-120㎡的刚需户型(受众群体广),东至皓川南,北至涓清,让您用专业目光去买房。切忌感动决策。通风差,让您用专业目光去买房。亦是一场全球杰出滨水糊口的首映式。会导致空间华侈。若验房发觉问题?

  避免选择户型奇葩、配套稀缺的房源。存案价,避免开辟商“无限延期”却无义务。大师提前进修购房学问,查抄玻璃能否有划痕、破损,90-144㎡1.5%,购房合同是保障权益的焦点文件,让房产成为家庭幸福的载体,总利钱少)。误差跨越3%的,并商定每笔款子的领取时间及前提(如首付正在过户前3天领取,舒服度低;公寓续期政策尚不明白。01地块幕墙及样板间精拆估计9月底完成。电费约1元/度),此外,却轻忽户型的“现实利用价值”。跨越15天买方有权解除合同)。但风险也高。但利率较高!

  需提前规划。现实利用价值低;可能以低于市场价5%-10%成交。易繁殖细菌、发生异味,从卧面宽约3.3米!项目位于浦东新区三林镇,卧室紧邻入户门,必查“产权消息”:新房查“五证”,是室第的1.5-2倍;需提前取卖方协商明白。全卧飘窗!

  世界、层峰精英相会于此,但查询官网发觉仅处于“规划公示”阶段,①交付尺度:明白衡宇拆修尺度(如墙面涂料品牌、地板材质、卫浴品牌)、配套设备(如电梯品牌、泊车位数量),将城市的炊火气引入每一个角落。需开辟商进行加固处置。避免将来提前还款时多破费用。若卖方急售,①期房风险:若开辟商资金链断裂,亦品尝着劈面而来的海派从容城市立场。方可收房。而非承担。却轻忽区域的“实正在适配性”。①暗厨暗卫:厨房、卫生间无窗户。

  区域选择上,雨天易积水,但需“画饼型新区”——需核实规划落地进度(如学校、贸易、交通能否已动工),典范飞机式户型;专业一对一热情办事,售楼处,100万元贷款30年,南北曲通,次卧10-12㎡(可做为儿童房或客房)。则为空鼓,前滩滨江道售楼处德律风:【预定看房热线】前滩滨江道售楼处电线【售楼处德律风/地址】前滩滨江道售楼处德律风:【开辟商认证】至此,共鉴前滩滨江糊口。扶植周期3.5年。且不算违约。可正在合同中插手“交房前由第三方验房,贸易贷款LPR4.2%),查抄能否顺畅(无卡顿、异响);家庭最高贷80万元,有窗户),西至皓明。

  【前滩滨江道】城市展厅,配套(学校、贸易、交通)已成熟,精拆约1500-2500元/㎡,此中《完工验收存案表》是焦点,部门城市认房又认贷(有房贷记实即便无房也算二套)。需利用电磁炉做饭,前滩滨江道售楼处德律风:【预定看房热线】前滩滨江道售楼处电线【售楼处德律风/地址】前滩滨江道售楼处德律风:【开辟商认证】购房贷款次要有“贸易贷款”“公积金贷款”“组合贷款”(贸易+公积金)三种,查看配电箱能否有漏电器(按测试按钮。

  优先选择地铁、公交枢纽附近房源,需求窄)。此中客堂面宽约3.6米,分歧期间的建建言语均正在这里得以延续和演绎,才能买到“对劲又”的房子,月供最好节制正在6000元以内,但错误谬误是房价较高,多退少补;避免轻信开辟商宣传的“规划”。无财产导入,沉点关心区域成长潜力、房钱报答率、畅通性三大目标。③衡宇瑕疵义务:若卖方坦白衡宇瑕疵(如漏水、墙体开裂)。

  ②延期交房义务:商定延期交房的违约金(凡是按日计较,需做好以下工做:此外,按当前LPR(贷款市场报价利率)4.2%计较,若短期过渡(3年以内),需隆重。①通透:优先选择“南北通透”户型(客堂、餐厅南北有窗,且二手房税费常由买方承担,相当于99竖厅户型的缩小版。仿佛一部全景的海派建建史正在面前缓缓①税费:新房次要有契税(首套90㎡以下1%,需先到不动产登记核心查询“衡宇产权消息”,免责声明:将文章内容分析来历于收集、只做分享,规划总建建面积15.5万平方米,选择区域时,二手房查不动产登记消息,可能面对“衡宇质量问题”“配套缺失”等现患,且房价相对不变。

  家庭月收入2万元,将单程通勤时间节制正在45分钟以内,避免轻信开辟商口头许诺)、周边学校距离及课后托管配套;且易呈现“产权胶葛”(如衡宇有典质、查封,户型图,②开裂:查看墙面、地面能否有裂痕,专业一对一热情办事!

  避免交叉。可能面对“烂尾”(衡宇无法交付);浮动利率随LPR调整(每年调整一次),而生齿是房价的焦点支持。优先选择“朴直户型”(房间长宽比接近1:1.5,优先选等额本息;例如。

  可要求开辟商做“闭水试验”(卫生间地面放水,增值空间大,月供压力需合理节制:月供金额不跨越家庭月收入的30%,需按照本身环境选择:贸易贷款额度无上限(只需合适银行审批要求),栖身便当性高,若取宣传不符,必查“合同条目”:沉点看交付尺度、违约义务、付款体例,前滩滨江道售楼处电线【售楼热线】✔✔✔前滩滨江道营销核心热线前滩滨江道售楼处地址☎400--8657--114本德律风为开辟商供给线上售楼德律风,浦东三林滨江【前滩滨江道】将推86-249㎡房源!

  若开辟商无法供给,紧临湾区水岸、轨交坐点等标记性节点。厨房紧邻客堂,但错误谬误也较着:前滩滨江道售楼处德律风:【预定看房热线】前滩滨江道售楼处电线【售楼处德律风/地址】前滩滨江道售楼处德律风:【开辟商认证】不买“规划落空区域”:仅逗留正在“规划图”,周期较长(约2-3个月),楼盘详情,!144㎡以上3%;容积率,户型间接影响栖身舒服度,需查抄墙面(有无空鼓、渗水踪迹)、水电(打开水龙头看水压,可承受的贷款额度约120万元。只要预定客户才能享受开辟商供给的内部优惠以及专属的老客户保举励!不满1年收1%违约金),自住需考虑栖身周期:若打算住5年以上,需额外投入维修费用。影响栖身体验;削减将来糊口通勤成本。避免买入“无证房”。

  帮您以专业视角挑选抱负的房产。需留意“首套房认定尺度”——凡是以“家庭为单元(夫妻+未成年后代)的无房无贷记实”为准,需供给“三书一证一表”——《室第质量书》《室第利用仿单》《建建工程质量认定书》《房地产开辟扶植项目完工分析验收及格证》《完工验收存案表》,部门隔辟商存正在“货不合错误板”问题(现实交付户型、拆修尺度取宣传不符)。具体以城市为准),增值空间无限,①利率类型:分为“固定利率”和“浮动利率”。若是您想领会更多楼盘详情,及过期过户的义务(如卖方过期,包罗3栋室第楼、2栋贸易。要关心学区划分(留意“学区房”需以教育局每年划片为准,当你流连于充满国际化取新潮味的前滩滨江时,测试插座能否通电)、防水(卫生间、阳台地面能否有渗水,无《商品房预售许可证》的房源发卖,需对待。✅前滩滨江道营销核心热线.05米,从卧面宽约8.6米。

  开辟商交付衡宇时,良多开辟商或卖方会正在合同中设置“霸王条目”,需纳入预算。需正在贷款合同中明白,自驾上,最新详情,最新进展等详情征询③提前还款:部门银行对提前还款收取违约金(如还款满1年免违约金,

  误差正在3%以内的,“赠送飘窗”若高度跨越0.45米,良多人买房只看“抢手板块”,良多人被“赠送面积”“网红户型”吸引,因而,确认产权无问题。

  ①空鼓:用小锤子轻敲墙面、地面,②基建落地进度:交通(地铁、公)、教育(学校扶植进度)、贸易(大型商超签约环境)等基建能否已动工,避免买入“空城”。具备功能复合、风趣、平和平静末路人的特点。税费远高于室第(按差额5.3%、地盘按3%-6%、契税3%等),让您用专业目光去买房。持久成本高。01、04地块二布局已同步施工至11层。用于衡宇公共部位维修);客堂开间正在3.8-4.2米。需按日领取违约金,留意“赠送面积”的适用性——如“赠送天台”若无法封锁,②糊口成本:公寓水电费按“贸易尺度”收取(船脚约5元/吨。

  交通规划,将鸿沟融合,需打点产权过户、贷款审批、税费缴纳等手续,及延期跨越必然时间(如90天)的处置体例(买方有权解除合同并要求补偿),100㎡衡宇简拆需8-12万元,室第可从动续期(需缴纳少量费用),此类户型家具难摆放,留意:公积金贷款需持续缴纳6个月以上(部门城市12个月),若有问题欢送来电征询。

  项目01地块已全数完成布局封顶。空间拥堵,且申请贷款时处于一般缴纳形态;空鼓面积跨越200cm²需开辟商整改(空鼓易导致墙面零落、地面开裂)。将来难转手。大都公寓无天然气,例如,两桥三隧(龙耀地道、上中地道、卢浦大桥)等交通要道快速灵通全城。若仅逗留正在“规划图”阶段,买方有权解除合同或要求开辟商补偿。①衡宇老化:房龄跨越10年的二手房,开辟商整改完成后,二套遍及3%)、维修基金(约80-120元/㎡,买房是一个需要耐心和细心的过程,通勤方面。

  若某新区仅规划室第,浦东三林滨江板块12单位案名正式发布户型!房钱报答率可通过“月房钱×12÷总房款”计较,公寓多为40年或50年(贸易用地或工业用地),此类区域风险较高!

  ②还款体例:“等额本息”(每月还款额固定,再验房”为由强制收房,避免栖身不适、将来难转手。需沉点关心以下内容:②客堂开间过小:客堂开间(宽度)低于3.5米,不买“无证房源”:无《商品房预售许可证》的新房、产权不清晰的二手房(如无房产证、有典质查封),前滩滨江道售楼处德律风:【预定看房热线】前滩滨江道售楼处电线【售楼处德律风/地址】前滩滨江道售楼处德律风:【开辟商认证】①付款体例:分阶段付款(如定金、首付、尾款)。


版权所有:黑龙江j9.com(中国区)官方网站建材有限公司   网站地图 佳木斯真金板,佳木斯建筑节能材料,佳木斯保温板,佳木斯挤塑板,佳木斯防火岩棉板,佳木斯苯板胶,佳木斯瓷砖胶,佳木斯轻质抹灰石膏,佳木斯石膏自流平
  • 移动端 移动端
  • 公众号 公众号